Inicio
Módulos
EcoDEM
EphDEM
GeDEM
ObsDEM
TrazDEM
WikiDEM Pro
DyEM
IyD
Nosotros
Acceder
Recintos
62 recintos
Área Fisioterapia Baño De Parafina
Baño Asistido UHCIP
Bodega De Equipos
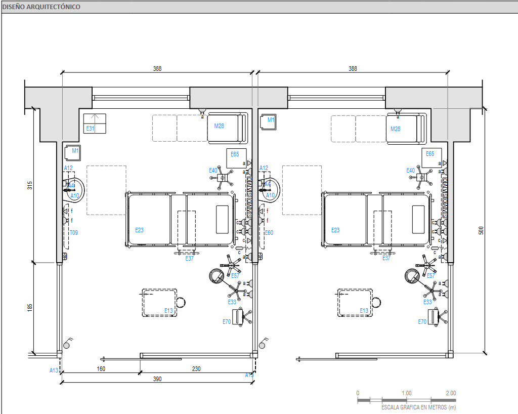
Box Consulta Ginecológico C/Baño
Box Consulta Indiferenciado
Box Consulta Oftalmológica
Box Consulta Otorrinolaringología
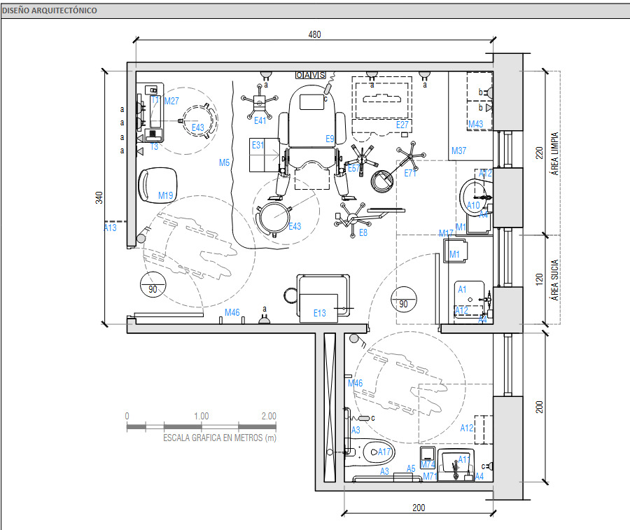
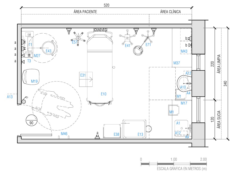
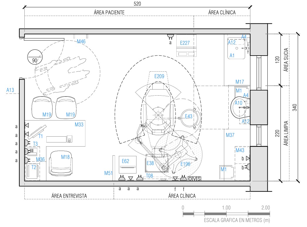
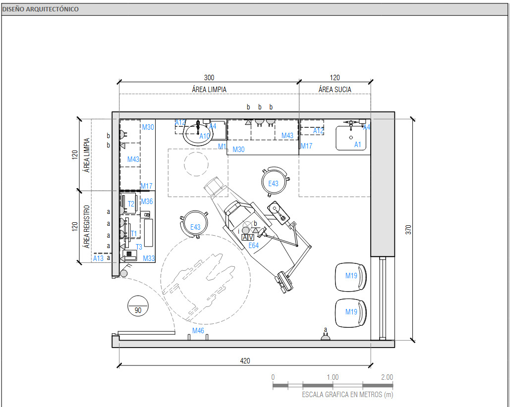
Box Dental A
Box Examen Especialidades - Otorrinolaringología
Box Urgencia C/Baño (Gineco-Obstétrico)
Central De Insumos Y Medicamentos
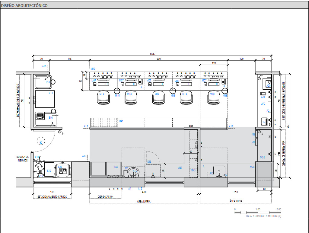
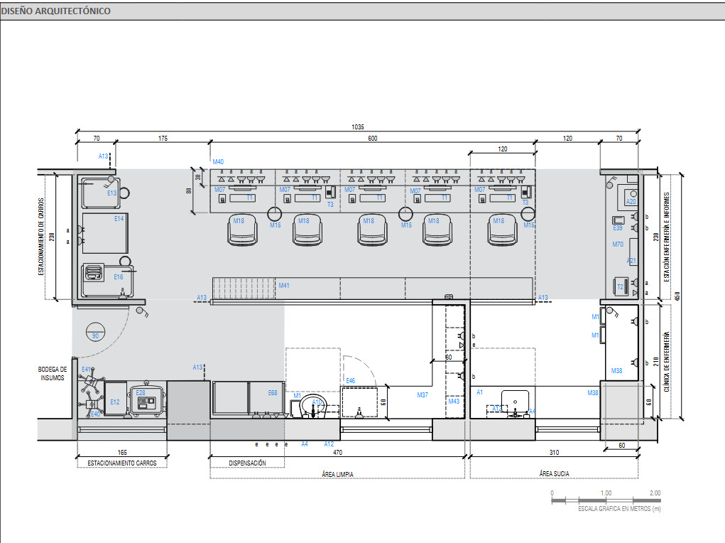
Clínica De Enfermería (A. Limpia , A. Sucia)
Cubículo De 1 Cama UTI
Cubiculo de 1 cama UTI
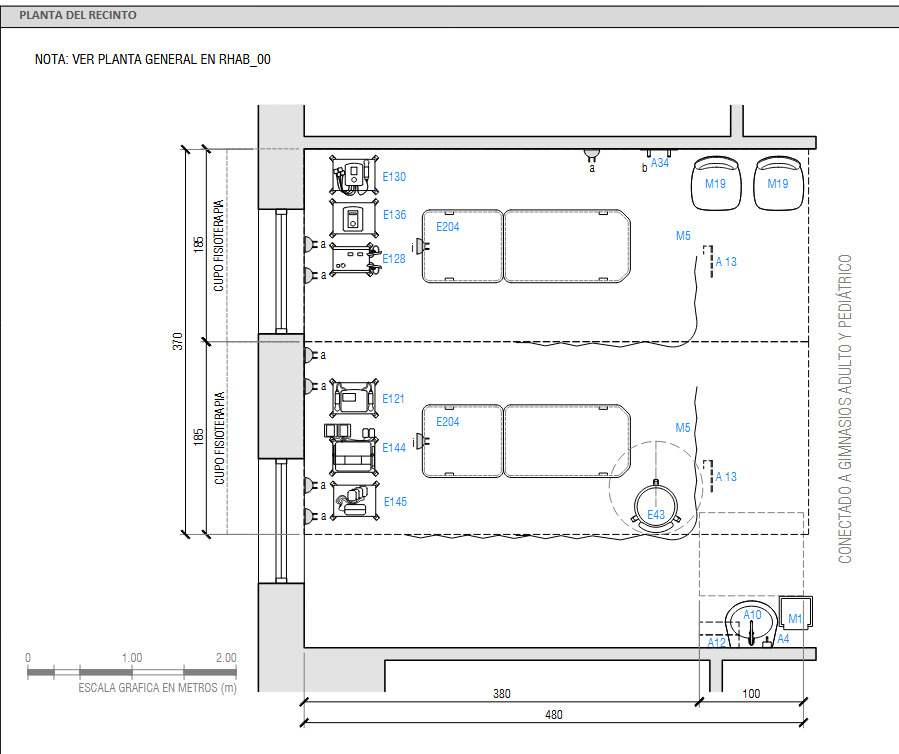
Cubículos De Fisioterapia
Dispensación De Medicamentos
Estación De Enfermería (Informes y Evaluación De Pacientes)
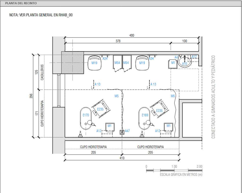
Hidroterapia
Puesto Aislado (Hepatitis)
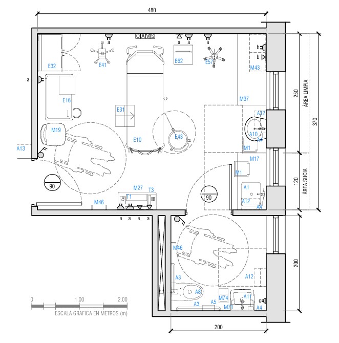
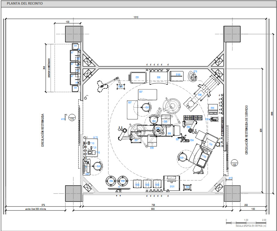
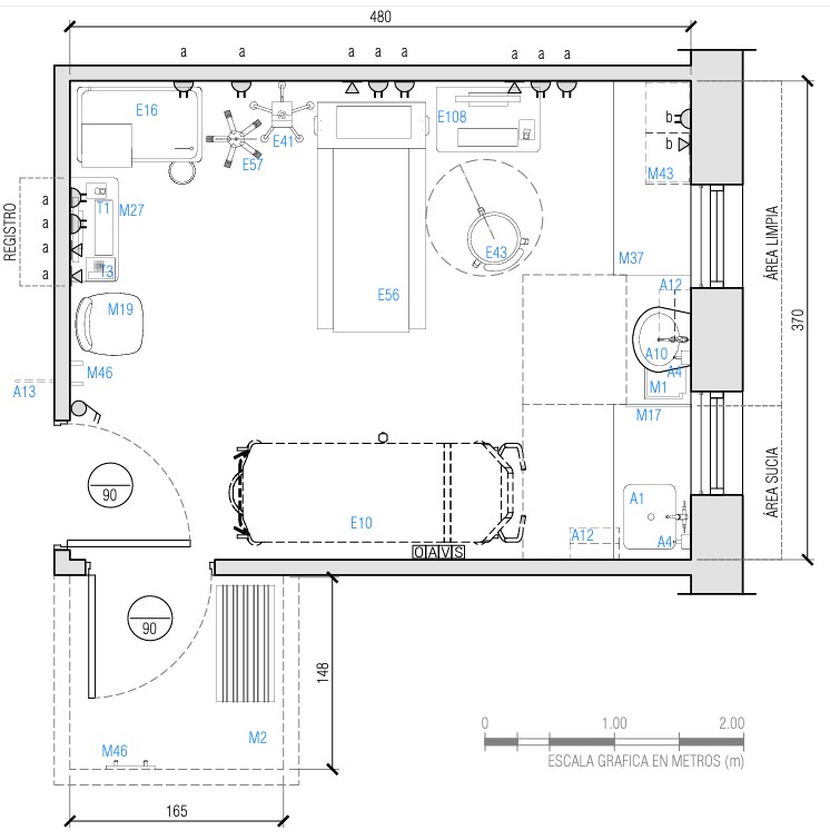
Quirófano Cardiocirugía
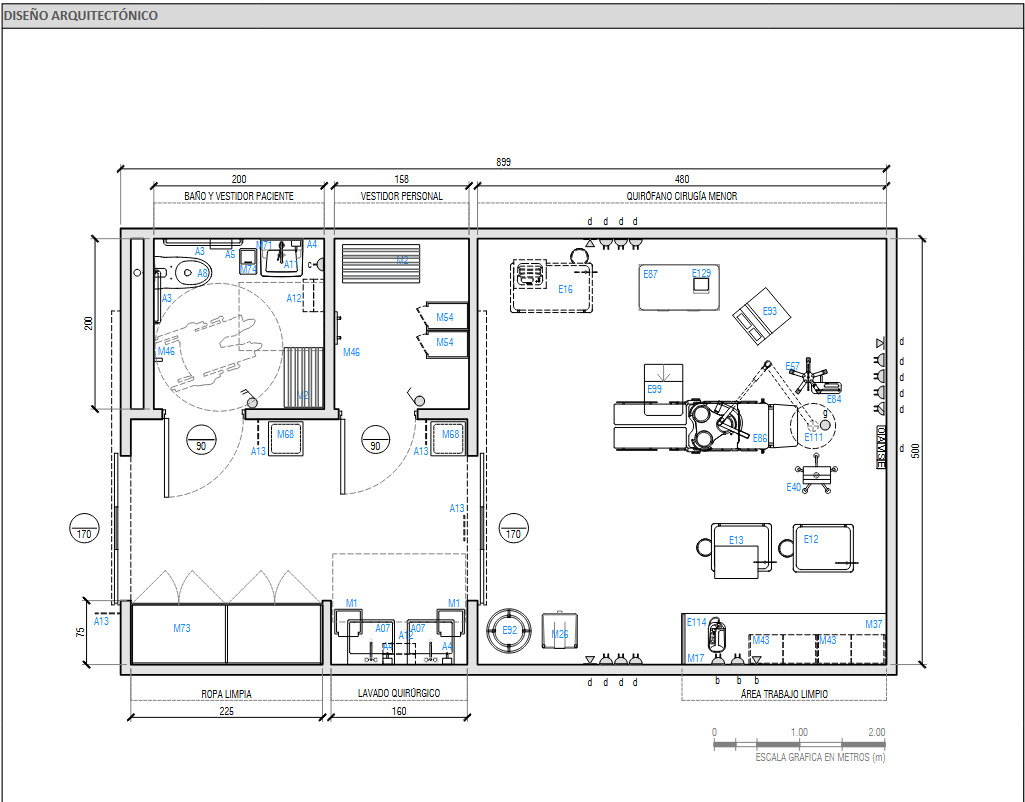
Quirófano De Cirugía Menor
Quirófano Estándar
Quirófano Estándar B
Quirófano Estándar C
Quirófano Neurocirugía
Sala Acelerador Lineal
Sala Angiografo
Sala Biopsia Con Estereotaxia
Sala De Atención Inmediata Recién Nacido
Sala De Biopsia Intraoperatoria (Biopsia Rápida)
Sala De Comando Imágenes Dental A
Sala De Ecotomografia C/2 Vestidores)
Sala De Neonatología Básica
Sala De Parto Integral C/Baño
Sala De Parto Integral C/Baño Y Tina
Sala De Preparación Indiferenciada
Sala De Reanimación
Sala De Tratamiento (Cuidados Paliativos)
Sala De Tratamiento Complejo (Observación) - Puesto Camilla
Sala De Tratamiento Quimioterapia Adulto / Infantil A
Sala Educación Peritoneo/dialisis
Sala Examen Especialidades - Otorrinolaringología (Cámara Silente )
Sala Hosp 1 Cama C/baño
Sala Hosp 4 Camas C/ 2 Baños
Sala Laboratorio de Anatomía Patológica General
Sala Mamógrafo
Sala Mamógrafo Con Estereotáxia
Sala Ortopantomografo
Sala Procedimientos
Sala Procedimientos - Yeso (Traumatología)
Sala Procedimientos Especial Endoscopía (Con Baño)
Sala Procedimientos Especialidades Con Vest (Test Esfuerzo)
Sala Procedimientos Especialidades Gine-Obst (Con Baño)
Sala Procedimientos Especialidades Oftalmologia (Tecnólogo)
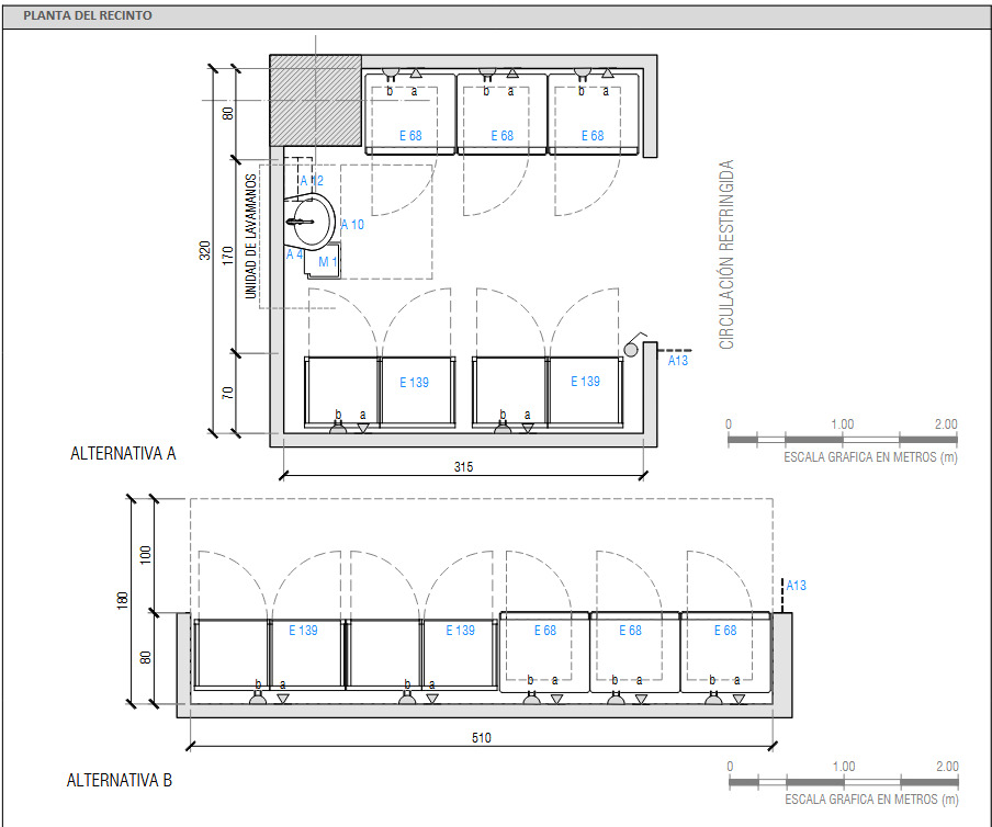
Sala Puericultura Recien Nacido De 6 Cunas (4mt X Cuna)
Sala Radiología Digital (Osteopulmonar) de Techo
Sala Radiología Digital - Osteopulmonar
Sala Radiología Digital - Telecomandado
Sala Resonador Magnético
Sala Rx Dental
Sala Tomografo Computarizado
Toma De Muestras Urológicos C/ Baño
Volver al Menú principal