Quirófano Estándar

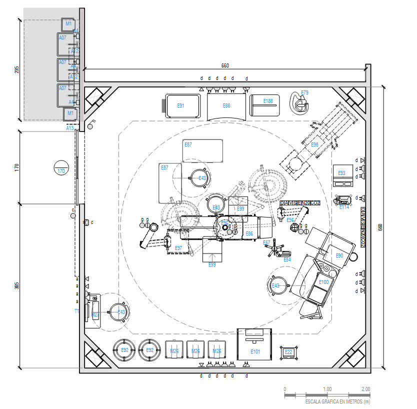
Imagen del recinto
Dimensiones de Sala
Alto de Sala (m)
Variable
Ancho de Sala (m)
6,6 metros
Largo de Sala (m)
6,6 metros
Tipo de Blindaje
Blindaje de muros (protección radiológica)
Infraestructura
Área Limpia
Requiere de área limpia
Área Sucia
Requiere de área sucia
Otras Áreas
No requiere áreas adicionales
Agua Fría
Requiere de conexión a agua fria
Agua Caliente
Requiere de conexión a agua caliente
Alcantarillado
Requiere de conexión a alcantarillado
Agua Tratada
No Requiere
Gases Clínicos
Si requiere
Ventilación
Ventilación Mecánica
Condiciones Ambientales
Presión
Presión Positiva
Temperatura
18 - 24 °C
Humedad
40% - 60%
Filtro
Filtro HEPA
Normativa Aplicable
• Decreto N°58 Norma Técnica Básica de Autorización Sanitaria para Establecimientos de salud. • ASHRAE 170 - 2013 Ventilación de instlaciones de atención médica • UNE-EN 12464-1:2012 Iluminación de los lugares de trabajo Parte 1: Lugares de trabajo interiores • NCh 2893.c2004 Equipos electromédicos - Requisitos generales de seguiridad • NCH Elec. 4/2003 Electricidad - Instalaciones de consumo en baja tensión
Equipos asociados a este recinto
Acondicionador de gas de insuflaciónArco en CAspirador quirúrgicoBomba de artroscopiaBomba de infusión de jeringaBomba de infusión volumétricaBomba de irrigación quirúrgicaCalentador de pacienteCalentador de sangre Calentador de sueroCamilla de transporteCapnógrafoCraneótomo eléctricoCuna de procedimientoDermatomo DesfibriladorDiatermia oftálmicaDuodenoscopioEcócardiografoElectrobisturíElectrocardiógrafoElectrocauterioElectroencefalógrafoEndoscopio flexible para cirugía reconstructivaEndoscopio lagrimal flexibleEndoscopio oftálmico flexibleEquipo de criocirugíaEquipo de isquemia quirúrgicoFacoemulsificadorFibrobroncoscopioGasómetro portátilGastroscopioGrapadora quirúrgica robótica de corteHisteroscopioHumidificador de alto flujoInsuflador de colonografíaLámpara quirúrgicaLáser quirúrgico (CO2)Localizador de venas por luz infrarrojaMáquina aféresisMáquina de anestesiaMáquina de hemodiálisisMedidor de flujo coronarioMesa de operaciones ginecológica Mesa de operaciones proctológica, electromecánicaMesa de operaciones urológicasMesa quirúrgicaMesa quirúrgica ortopédicaMicromanipulador para cirugía oftálmicaMicroscopio de cirugíaMicroscopio de oftalmologíaMicroscopio quirúrgico de otorrinolaringologíaMonitor de bloqueo neuromuscularMonitor de frecuencia cardíaca fetal portátilMonitor de presión arterial invasivaMonitor de presión intracraneanaMonitor de profundidad anestésica (BIS)Monitor de signos vitales de transporteMonitor hemodinámico invasivoMonitor hemodinamico no invasivoMonitor multiparametro de alta complejidadMorceladorNasoendoscopioNeuronavegadorOxímetro CerebalOxímetro De PulsoResectoscopioShaver ArtroscópicoShaver para columnaShaver para ORLSistema crioquirúrgico cardíacoSistema crioquirúrgico oftálmicoSistema de ablación por radiofrecuencia gastrointestinalSistema de brazo quirúrgico robóticoSistema de circulación extracorpóreaSistema de cirugía estereotáctica ORLSistema de endomicroscopía confocalSistema de estimulación eléctrica de nervios periféricos con control de bloqueoSistema de flebectomía por transiluminaciónSistema de irrigación/insuflación histeroscópicaSistema de litotripsiaSistema de litotripsia electrohidráulicaSistema de litotripsia láserSistema de mapeo cardíacoSistema de motor quirúrgico, eléctricoSistema de motor quirúrgico, neumáticoSistema de navegación por ultrasonido neuroquirúrgicoSistema de navegación quirúrgica por seguimiento ópticoSistema de osteosíntesis ultrasónica con pasador óseoSistema de ultrasonido vascular invasivoSistema eléctrico de autotransfusión con recuperación de sangre totalSistema electroquirúrgico de plasma electrolíticoSistema electroquirúrgico mejorado con gas inerteSistema láser para aterectomíaSistema láser de diodo oftálmicoSistema láser de diodo quirúrgico generalSistema láser doblador de frecuenciaSistema láser excímero oftálmicoSistema láser para ablación cardíacaSistema quirúrgico de plasmaSistema quirúrgico ultrasónicoTensiometroTorre de artroscopiaTorre de endoscopia Torre laparoscopíaUreteroscopioVentilador de TransporteVentilador MecánicoVentilador NeonatalVideoarterioscopio flexibleVideocolonoscopioVideolaringoscopio
Menú principal